Property
Beds
3
Full Baths
2
1/2 Baths
None
Year Built
1970
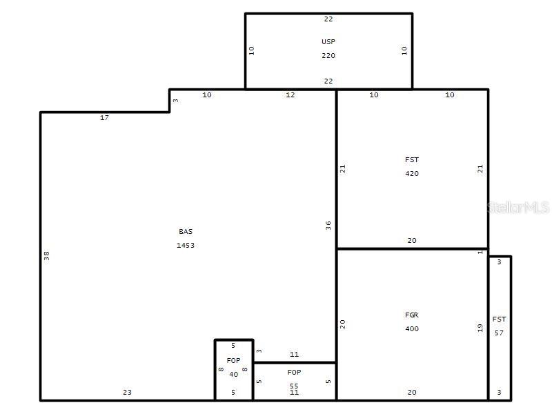
Sq.Footage
1,453
Middle Lake Waterfront. Yes, we found a nicely maintained 3-bedroom home on an approximately 35-acre lake with two islands named Duck and Egret Island. Both islands have birds that roost there year-round. So, if you want a pretty lake, a place to moor your pontoon boat maybe do a bit of fishing then call today for an appointment to see this well priced gem. The kitchen has a closet pantry, ample cabinets and counter tops, plus a nice window over the sink. There is also a 420 sq ft workshop room that is not included in the livable square footage that would be great for a workshop, hobby room or whatever you imagination desires. This home includes a roomy Florida room and a screened enclosed porch perfect to quiet evenings by the lake. Don't delay call now! This home is sold as is with no warranties expressed or implied. Buyer to satisfy their selves as to square footage and room measurements. Information contained herein subject to change without notice.
Features & Amenities
Interior
-
Other Interior Features
Open Floorplan
-
Total Bedrooms
3
-
Bathrooms
2
-
Cooling YN
YES
-
Cooling
Central Air
-
Fireplace YN
NO
-
Heating YN
YES
-
Heating
Central
-
Pet friendly
No
Exterior
-
Garage
Yes
-
Garage spaces
2
-
Construction Materials
Block
-
Parking
Attached
-
Patio and Porch Features
Screened
-
Pool
No
-
Waterfront YN
YES
-
View
Lake, Water
Area & Lot
-
Lot Features
Cul-De-Sac, Paved, Waterfront
-
Lot Size(acres)
0.24
-
Property Type
Residential
-
Property Sub Type
Single Family Residence
-
Architectural Style
Contemporary
Price
-
Sales Price
$299,900
-
Tax Amount
$1,818.03
-
Sq. Footage
1, 453
-
Price/SqFt
$206
HOA
-
Association
Yes
-
Association Fee 2
$346
-
Association Fee
$346
-
Association Fee Frequency
Annually
-
Association Fee 2 Frequency
Annually
-
Association Fee Includes
N/A
-
Total Monthly Fees
$63.92
School District
-
Elementary School
N/A
-
Middle School
N/A
-
High School
N/A
Property Features
-
Stories
1
-
Association Amenities
Clubhouse, Pool
-
Foundation Details
Slab
-
Ownership
Fee Simple
-
Senior Community YN
YES
-
Sewer
Public Sewer
-
Tax Lot
18
-
Water Source
Public
Schedule a Showing
Showing scheduled successfully.
Mortgage calculator
Estimate your monthly mortgage payment, including the principal and interest, property taxes, and HOA. Adjust the values to generate a more accurate rate.
Your payment
Principal and Interest:
$
Property taxes:
$
HOA fees:
$
Total loan payment:
$
Total interest amount:
$
Location
County
Hillsborough
Elementary School
Middle School
High School
Listing Courtesy of Sally Bodmer , BAYSIDE REALTY GROUP INC
RealHub Information is provided exclusively for consumers' personal, non-commercial use, and it may not be used for any purpose other than to identify prospective properties consumers may be interested in purchasing. All information deemed reliable but not guaranteed and should be independently verified. All properties are subject to prior sale, change or withdrawal. RealHub website owner shall not be responsible for any typographical errors, misinformation, misprints and shall be held totally harmless.
FOUNDER
Ashley Baillio
Call Ashley today to schedule a private showing.
* Listings on this website come from the FMLS IDX Compilation and may be held by brokerage firms other than the owner of this website. The listing brokerage is identified in any listing details. Information is deemed reliable but is not guaranteed. If you believe any FMLS listing contains material that infringes your copyrighted work please click here to review our DMCA policy and learn how to submit a takedown request.© 2024 FMLS.